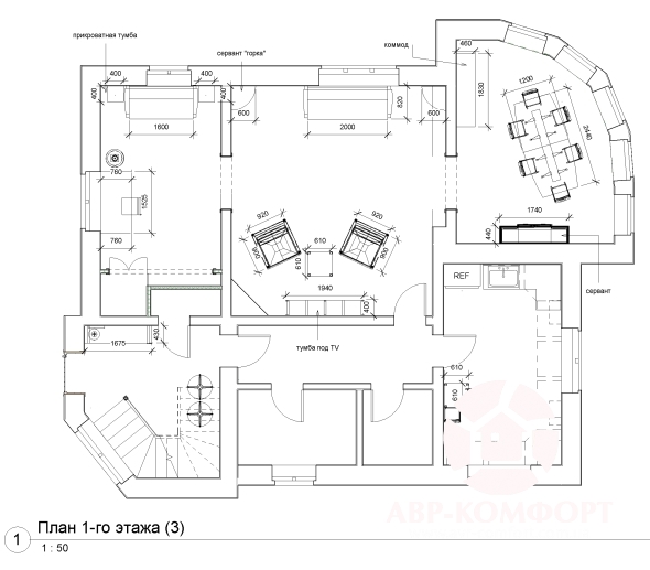
Внутренние отделочные работы на данном объекте были завершены нашей компанией весной 2013 г. Ознакомиться с дизайн проектом ремонта можно на отдельной страничке сайта в разделе Дизайн интерьера.
Дачный дом в с.Лютеж Вышгородского р-на Киевской обл.:
Проект дома:
|
Дизайн интерьера для коттеджа в селе Рославичи Киевской области:
|
|























