Дизайн интерьера фото проект Таунхауза в Киевской области
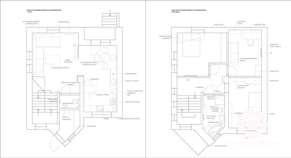
В целом проект выполнен в минималистическом стиле с преобладанием светлых тонов в интерьере. Элементом декора гостиной студии является аквариум, зашитый в стену между отдельными зонами помещения.
Ознакомиться с результатом дизайн ремонт дома можно в отдельном разделе нашего Портфолио, посвященному строительству и ремонт коттеджей фото.























